



Transformation d’une maison villageoise.
Données du projet
Lieu : Ravoire, Valais
Lieu : Ravoire, Valais
Année : 2026
Programme : transformation
Mandat : conception et réalisation
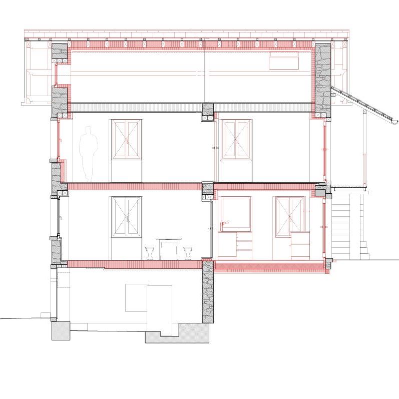
Enveloppe : laine de verre (murs 10 cm, toit 24 cm) / vitrage triple
Energie : poêle à pellets, fourneau pierre ollaire
